Join us
Become A Member
Is a housing co-op the right choice for you?
In Ontario, as you make preference selections for a municipal/regional centralized waiting list, there are lots of factors to consider:
What neighbourhood do I want to live in?
How many bedrooms do I need?
What type of unit do I want – apartment or townhouse?
What type of community do I want to live in – family oriented or senior living?
But as you check off your selections, are you also considering the difference between living in a housing co-op and other rentals? Now that applicants on the centralized waiting list must accept the first offer of housing, it is very important that, on your application, you choose the right preferences for you.
The housing co-op difference
There are more than 500 housing co-ops across Ontario. From the sidewalk, they look like any other street address. The co-op difference is on the inside. Co-operatives are democratic organizations, controlled jointly by the people who live there. When you move into a co-op you are a member, not a tenant. The Residential Tenancies Act, 2006 (RTA) does not apply to housing co-ops except for one specific section about eviction. So all of the rules the RTA sets out for landlords and tenants don’t apply to members in housing co-ops. Instead, each housing co-op adopts by-laws to govern the co-op’s operations. Co-op members don’t sign leases; they sign occupancy agreements that state they will abide by the by-laws that have been enacted by the members. Together with the other members, you elect a board of directors from among yourselves, set the rents, and make all the important decisions about your home. You make these decisions at members meetings.
Co-op members have rights and responsibilities. So, along with the right to make these decisions, you also have the responsibility of attending the meetings where these decisions are made. This doesn’t mean that you will spend all your time in meetings. Most co-ops have between 2 to 4 members meetings per year. Housing co-ops do expect members to be actively involved in the operations of their co-op. The rules around this can be different from co-op to co-op.


Diverse and inclusive communities
The over 250,000 people who live in Canada’s housing co-ops come from all walks of life and all income brackets. In housing co-ops, we take pride in the diversity of our members. What the members share is a commitment to making their co-op work for everyone. Co-op members volunteer their time and talents to enrich the lives of all the members. Some examples of how members do this are, by serving on the board of directors, writing a newsletter, helping with gardening, organizing a social event for all the members or looking out for a sick or an elderly neighbour. The possibilities are endless! Members find all kinds of ways to engage with their community and make it a better place to live.
Housing charges
In a housing co-op, members pay what we call housing charges instead of rent. Housing co-ops run on a non-profit basis. There is no outside landlord making a profit. Each household pays their fair share of the operating costs each month and we call that the housing charge. In some co-ops, the members have agreed to extra charges. (ex. parking, cable) Extra charges would be different from co-op to co-op depending on the decisions of the membership. What you should know however, is the amount of housing charge you pay in a housing co-op will be calculated exactly the same way rent is calculated for any of the other selections on the list. When you apply for housing through the centralized waiting list, the amount you pay is based on your income. It will be the same whether you select a housing co-op, a private non-profit or a municipal housing provider. The potential extra charges will be the only difference.


Making the choice for co-op housing
If you are not that interested in being engaged in the community where you live and would rather be a tenant than a member, you probably won’t be that happy in a housing co-op and should not select a housing co-op as one of your preferences. And that’s ok, co-op housing is not for everyone. But if you can see yourself living in a community where you have a say in how it operates and want to volunteer with other members to make it a great place to live, then you should select a housing co-op. If you select a housing co-op, ask the co-op if they have any upcoming Information Sessions that you could attend to get more information about their co-op. You can find more general information about housing co-ops at our website: chfcanada.coop/about- co-op-housing.
How to Become a Member
Currently the co-op is not accepting new applicants for market housing charge units. Those requiring housing must apply first through the County of Wellington centralized wait list.
For all applicants a landlord check, possible credit and income verification is completed. There is an orientation/interview with the co-op and then the Board of Directors makes the final approval for membership to move in. All approved members (individuals over 16 year of age) will be required to pay a one-time membership fee in order to move in.
Members pay for hydro, gas, water tank rental, (central air conditioning fee if applicable). Each member must maintain content insurance for their unit. Each unit comes with one parking space (no charge), one additional parking space may be rented for a monthly fee (if spaces are available). The Co-op pays the water bills for the units
Application Form
This form is for those contacted from the Wellington waitlist
Floor Rates
Second parking space if applicable $40
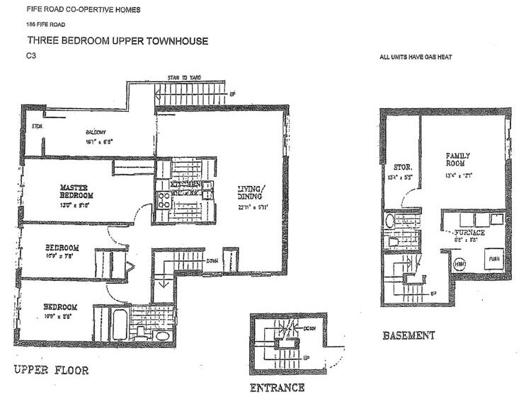
Floor Plans
Support service is always there for you!









Let’s Build Something Together
We’re here to help and answer any question you might have. We Look Forward to hearing from you.
